WNS Series Gas & Oil Fired Steam Boilers: The Gold Standard for Industrial Efficiency

CE Certified ISO 9001 99% Efficient

When your factory requires a reliable, high-purity steam supply with minimal maintenance, the WNS Series Gas & Oil Fired Steam Boilers is the undisputed industry leader. Engineered with a sophisticated three-pass, wet-back structure, our boilers combine compact design with a thermal efficiency of up to 98%. With 10 years of export experience, we deliver ASME-standard […]

Get Instant Quote

Technical Specifications

When your factory requires a reliable, high-purity steam supply with minimal maintenance, the WNS Series Gas & Oil Fired Steam Boilers is the undisputed industry leader. Engineered with a sophisticated three-pass, wet-back structure, our boilers combine compact design with a thermal efficiency of up to 98%. With 10 years of export experience, we deliver ASME-standard steam solutions that power industries across the Philippines, Uzbekistan, and beyond.


1. Advanced Engineering: The Three-Pass Wet-Back Design

Our WNS series isn’t just a boiler; it’s a masterpiece of thermal engineering designed to maximize your fuel investment:

  • Three-Pass Structure: Flue gas travels through the furnace and tubes three times, ensuring maximum heat transfer and reducing exhaust temperature.
  • Wet-Back Technology: Unlike old “dry-back” models, our rear smoke box is surrounded by water. This eliminates thermal stress on the rear tube sheet, preventing cracks and extending the boiler’s lifespan to over 20 years.
  • Large Combustion Chamber: The corrugated furnace design increases the heating surface and allows for complete fuel combustion, significantly reducing NOx emissions.
Exporting WNS Series Gas & Oil Fired Steam Boilers with 3-pass wet-back design for high industrial efficiency

2.WNS Series Gas & Oil Fired Steam Boilers Technical Specifications & Versatility

We offer a wide range of capacities tailored to your specific steam load:

FeatureSpecification Details
Capacity Range1 Ton/hr to 20 Ton/hr (Customizable)
Rated Pressure0.7 MPa to 2.5 MPa (7 Bar to 25 Bar)
Applicable FuelsNatural Gas, LPG, Diesel, Heavy Oil, Dual-Fuel.
Control SystemFully Automatic PLC (Siemens/Touch Screen options).
Burner BrandsBaltur, Riello, Weishaupt (International High-End)

3. Why Our WNS Series Gas & Oil Fired Steam Boilers Dominate the Export Market

Industrial buyers choose Kim’s solutions because we bridge the gap between quality and cost-effectiveness:

A. 98% Efficiency with Condensing Technology

By integrating a fin-tube condensing economizer, we capture the latent heat from the exhaust. This lowers your fuel consumption by 8-12%, often paying for the economizer upgrade within the first year of operation.

B. International Compliance (ASME & Beyond)

We don’t just build boilers; we build trust. Every unit comes with a comprehensive technical dossier required for local registration, such as DOLE Rule 1160 (Philippines) or Uzstandard (Uzbekistan).

C. Plug-and-Play Skid Mounting

For projects requiring rapid deployment, we offer skid-mounted boiler systems. All auxiliaries (pumps, water softener, deaerator, control cabinet) are pre-installed on a steel base at our factory, reducing your on-site installation time by 70%.


4. Smart Control: Safety and Automation

In 2026, boiler operation should be effortless. Our integrated PLC systems provide:

  • One-Button Start: Automated ignition, water feeding, and pressure regulation.
  • Multi-Level Safety Interlocks: Auto-shutdown for over-pressure, low water level, or flame failure.
  • Remote Monitoring: Check your boiler’s status from your smartphone, ensuring peace of mind even when you are off-site.

5.Why WNS Series Gas & Oil Fired Steam Boilers called the “gold standard”?

A. The 3-Pass Wet-Back Advantage

The WNS Series Gas & Oil Fired Steam Boilers utilize a sophisticated three-pass wet-back structure. This design ensures that the high-temperature flue gas passes through the heat exchange tubes three times, maximizing energy absorption. The ‘wet-back’ configuration means the smoke turning chamber is submerged in water, eliminating the refractory damage common in dry-back boilers and significantly extending the service life.

B. Corrugated Furnace for Enhanced Safety

At the heart of our WNS Series Gas & Oil Fired Steam Boilers is the large-diameter corrugated furnace. This isn’t just for heat exchange; the corrugations act as a thermal expansion joint, reducing stress on the tube plates during rapid start-ups. Combined with an automated PLC control system, this makes the WNS the safest choice for high-demand industrial steam.

6.FAQ: Selection & Maintenance of WNS Series Gas & Oil Fired Steam Boilers

Q1: How do I choose the right boiler capacity (Tonnage) for my factory?

A: Selection depends on your peak steam demand. A general rule is to sum up the steam consumption of all your production equipment and add a 20% safety margin to account for heat loss in pipes. For example, if your machines need 3.2 tons/hr, a 4-ton boiler is the ideal choice. As a professional with 10 years of experience, Kim can provide a detailed Steam Load Calculation based on your specific industry (Textile, Food, or Chemical). Need a custom calculation? contact kim please

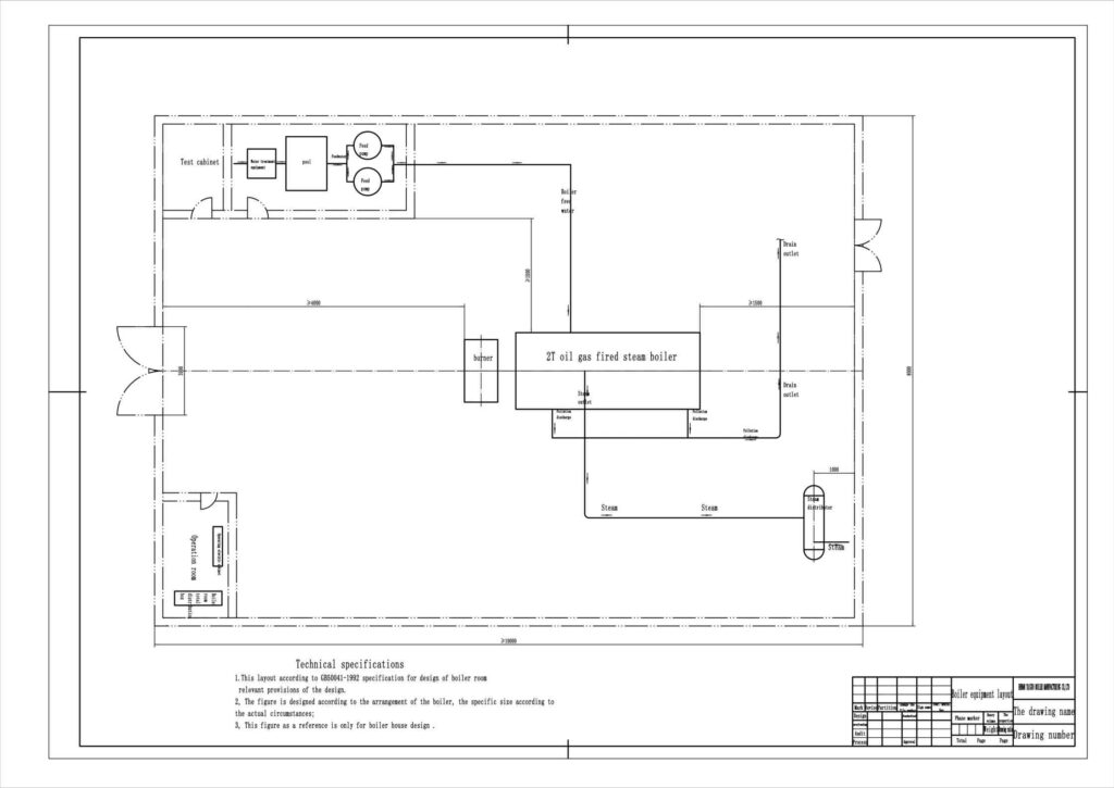
Q2: What are the requirements for the boiler room layout and ventilation?

A: Safety and airflow are paramount. The boiler room must have sufficient fresh air intake for combustion (approx 15m³ of air per 1m³of natural gas). There should be at least 1.5 to 2 meters of clearance around the boiler for maintenance access. We provide customized Boiler Room Layout Drawings to ensure your site meets local safety codes like DOLE Rule 1160 or Uzstandard.

WNS GAS FIRED STEAM BOILER BOILER ROOM LAYOUT

Q3: How often should I perform maintenance on my WNS Series Gas & Oil Fired Steam Boilers?

A: We recommend a “Daily-Monthly-Yearly” routine to ensure a 20-year lifespan:

  • Daily: Check water levels, blow down the boiler to remove sediment, and monitor stack temperature.
  • Monthly: Inspect the burner flame pattern and clean the water level sensing probes.
  • Yearly: Open the front and rear smoke boxes for tube inspection, and perform a professional burner tune-up to maintain 98% efficiency.

Q4: Why is the stack temperature (flue gas temperature) rising, and how do I fix it?

A: A rising stack temperature usually indicates Scaling inside the boiler or soot buildup in the tubes, both of which act as insulators. Even 1mm of scale can drop efficiency by 5%. The solution is to ensure your Water Softener is working correctly and to perform a periodic mechanical or chemical cleaning. Our boilers feature “Easy-Open” doors to make this process fast and simple.

Q5: Can I switch from Diesel to Natural Gas later if my local infrastructure changes?

A: Yes! One of the biggest advantages of the WNS series is its flexibility. The boiler body remains the same; you only need to replace the burner and adjust the control system settings. We highly recommend purchasing a Dual-Fuel Burner initially if you anticipate a gas pipeline arrival in the next 1-2 years. This allows you to switch fuels with a simple flip of a switch.

Q6: What is the efficiency rating of WNS Series Gas & Oil Fired Steam Boilers?

A: Standard models achieve approximately 92-94%. However, when equipped with a Condensing Heat Exchanger (a premium boiler auxiliary), the efficiency of the WNS Series can reach a remarkable 98%, drastically reducing fuel consumption.

Q7: Is the WNS boiler easy to install for export projects?

A: Yes. These are skid-mounted packaged boilers. We pre-assemble the burner, control cabinet, and valves at the factory. Once it arrives at your site, you only need to connect water, electricity, and fuel pipes, making it the international ‘Gold Standard’ for rapid deployment.

Q8: How does the WNS series handle environmental compliance?

A: Equipped with world-class Low NOx burners (like Riello or Baltur), our WNS Series Gas & Oil Fired Steam Boilers can limit nitrogen oxide emissions to less than 30mg/m³, meeting the strictest 2026 global emission mandates.

6. Get a Factory-Direct Quote Today

Eliminate the middleman and partner directly with a supplier who has a 10-year track record and 111+ successful global installations.

  • Free Technical Selection: Not sure if you need 4 tons or 6 tons? We provide professional load calculations.
  • Logistics Excellence: We handle the Form E documentation to ensure zero-duty imports for our ASEAN clients.

📩 Contact Kim for your WNS Boiler Proposal

  • WhatsApp:861509341537
  • Direct Inquiry: kimjin2018@cnmiracletrade.com

For the full technical specifications of this model, explore our WNS Gas Steam Boiler hub.